Primrose Road, South Woodford, London, E18 1RB
Primrose Road, South Woodford, London, E18 1RB
Guide Price
£600,000
BD
3
BA
1
RE
2



Property Video
My Property
WHAT’S MY HOME WORTH?Features
Three bedroom terraced house in central location close to South Woodford Central Line station
No onward chain
Two reception rooms
Modern fitted kitchen & separate utility room
Family bathroom and ground floor cloakroom
South facing garden with rear pedestrian access
Garage in block
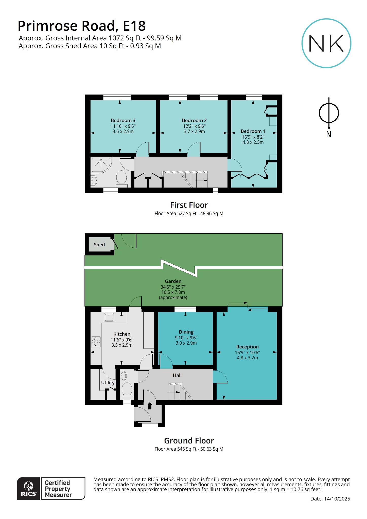
Over 1,000 sq ft of accommodation
Walking distance to George Lane's shops, restaurants & cafes, local fitness studios & supermarkets
Excellent choice of state and independent local nursery and schools
Property Information
Guide Price £600,000
A deceptively spacious former four bedroom converted into a large three bedroom terraced house in central South Woodford location, close to George Lanes shops, restaurants & cafes and just a 4 minute walk from South Woodfords Central Line station. The house, covering over 1,000 sq ft is offered with no onward chain.
There are two reception rooms, a spacious, modern kitchen with separate utility room, three double-sized bedrooms and both a first floor bathroom and a ground floor cloakroom. The large south facing garden has rear pedestrian access to the garage.
Primrose Road is close to a host of amenities including the local cinema, a choice of supermarkets, gym & fitness studios, excellent schooling options and a variety of parks and green spaces.
Council Tax Band D
EPC Rating D
Register for Property Alerts
Stay ahead of the market by registering with Neil King. Be the first to hear about new properties, tailored to your needs, before they hit the major portals. It’s quick, easy, and ensures you never miss the right opportunity. Let us help you find your perfect move, sooner.

